株式会社ミュー不動産
spacer
シングル ファミリー 貸家 売買 店舗・事務所 中古物件 会社概要
spacer
物件の概要
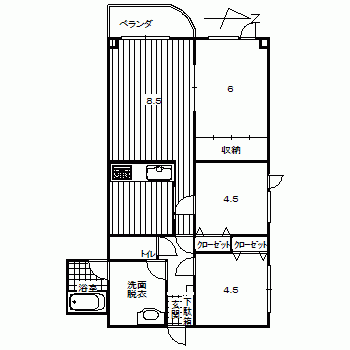
コートノースリーズン
3LDK 稚内市栄5丁目8番13号 65,000円
spacer
外観と間取り図
周辺の地図 内装の写真
ペット可!
 
spacer
物件の詳細
ペット可 駐車場2台あり 光ネット対応 除雪あり ストーブ
構造・種別 s造 / マンション 総戸数 住居 8戸
取引形態 仲介 家財保険 有り 入居予定 4月22日退去予定
5月中旬頃入居可予定
仲介料 71,500円 町内会費 月額600円 共益費 月額500円
礼金 65,000円 備考 ベランダあり  洗面台あり
spacer
内装の写真
対面キッチン リビング 洋室 バス
spacer
spacer